
3080-7218-95-33
Hinge 180°
- Detachable
- Hinges for prominent doors
Product description
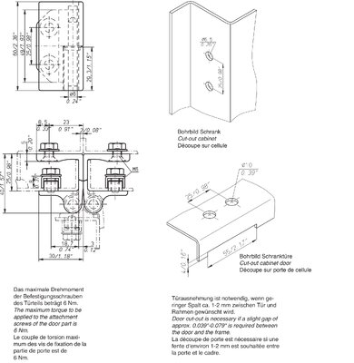
Door thickness max. 4 mm
Attachment to cabinet (2x M6)
Attachment to door (2x M6), required drillings 2x ø 10 mm
Technical Data
-
Order No.: 3080-7218-95-33
-
Material: zinc die-casting
-
Surface: black powder coated
-
Material and Surface: hinge pin: stainless steel 1.4305
fixing material: galvanized steel -
Type: for doors hinged to the left side
Notice
- 180° screw-on hinge, left stop: 3080-7218-95-43
- Chromed version on request
- 1 Hinge with fixing material
CAD data and other file formats:
Contact for products
Find your personal point of contact
We are happy to help you.
The best switch cabinets and casings are not produced on an assembly line, but rather designed in close cooperation with our customers. Are you ready to begin? Then contact your personal häwa consultant.

